wgn

Dom na sprzedaż Zawiercie - Duży dom z wielkim potencjałem !

Domy sprzedaż, śląskie, Zawiercie , Nowe Zawiercie
Oferta na wyłączność

Dodano: ponad 14 dni temu

Opis ogłoszenia:

sygnatura: SD068-142

Sprzedam, dom dwurodzinny, 200 m2, Oświatowa, Nowe Zawiercie, Borowe pole, Zawiercie.

Oferta na wyłączność - WGN Nieruchomości Zawiercie

Oferujemy Państwu na sprzedaż Dom z bardzo dużym potencjałem.

Dom o powierzchni użytkowej ok. 200 m2 znajduje się na ogrodzonej działce o powierzchni 600 m2.

Wymiary działki 22x25.

Budynek pochodzi z roku 1966 natomiast w 1995 roku zostało dobudowane piętro wraz z użytkowym poddaszem.

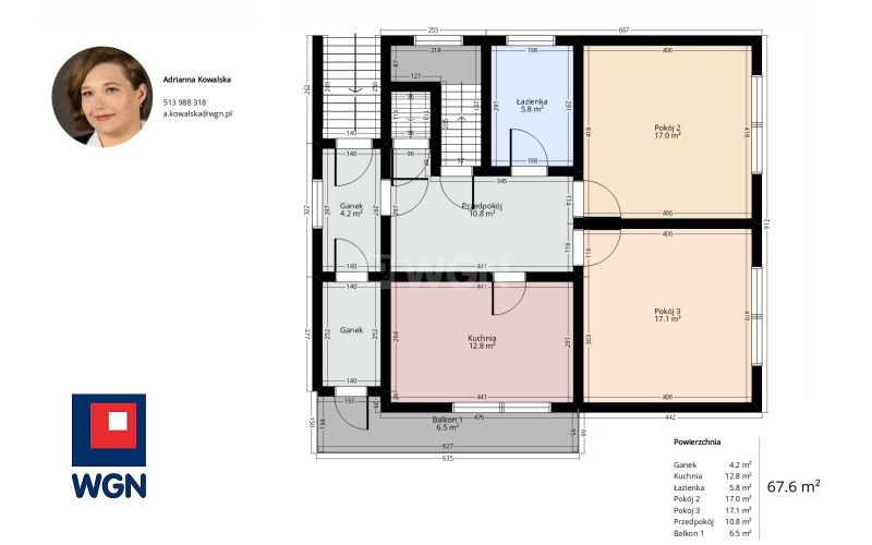
Rozkład pomieszczeń:

PIWNICA - wys. 2.35
- Pomieszczenia gospodarcze
- Kotłownia

PARTER - wys. 2.75:

- Ganek z wyjściem na balkon
- Klatka schodowa
- Przedpokój
- 2 pokoje
- Kuchnia
- Łazienka z prysznicem
- Wejście do piwnicy

1 PIĘTRO - wys. 2.75:

- 3 pokoje
- Łazienka z wanną
- Przedpokój z wyjściem na duży balkon
- Klatka schodowa

2 PIĘTRO - poddasze

- 2 w pełni funkcjonalne pokoje bez skosów
- duże pomieszczenie ok. 35mkw ze skosem (dawniej - suszarnia)

Nieruchomość jest zadbana lecz wymaga unowocześnienia / remontu.

Na działce znajduje się garaż - wjazd bezpośrednio z ulicy Kołłątaja.

Nieruchomość posiada dostęp do wszelkich niezbędnych mediów:

- Woda z sieci
- Prąd (siła)
- Gaz do gotowania oraz podgrzewania wody
- Kanalizacja
- Piec C.O. na ekogroszek

W pobliżu znajdują się liczne atrakcje oraz udogodnienia np:

- Szkoła
- Kościół
- Żabka
- Dino
- Przystanek autobusowy

i wiele innych...

Naszą ofertę dedykujemy w szczególności potencjalnym klientom poszukującym domu dla rodziny wielopokoleniowej lub poszukującym większej przestrzeni.

Oferta godna uwagi... POLECAMY

Więcej naszych ofert znajdą Państwo na stronie: www.zawiercie.wgn.pl

W razie wszelkich pytań (nieruchomość, kredyt na zakup) prosimy o kontakt telefoniczny.


Zapewniamy pomoc w doborze oraz uzyskaniu najkorzystniejszego kredytu hipotecznego na zakup
bądź remont nieruchomości.

WGN zapewnia rynkowe ceny, bezpieczeństwo korzystnej transakcji oraz pomoc notariusza.

Wyróżniamy się pełnym zaangażowaniem, ekspercką wiedzą i najwyższym poziomem usług
opartym na ponad 30-letnim doświadczeniu. Stosujemy System Jakości ZJ WGN oraz Kodeks Etyki
Zawodowej Polskiej Federacji Rynku Nieruchomości.

Informacje dotyczące nieruchomości zostały sporządzone na podstawie oświadczeń i nie są ofertą
w rozumieniu przepisów prawa, mają charakter wyłącznie informacyjny i mogą podlegać
aktualizacji, zalecamy ich osobistą weryfikację.

Wszystkie teksty, rysunki, zdjęcia oraz wszystkie inne informacje opublikowane na niniejszych
stronach podlegają prawom autorskim.

Średnie ceny w tej lokalizacji: 3 681,84 zł/m²

Licznik odsłon: 889

tel. +48 5
kom.: +48 5 pokaż
numer

oferta bezpośrednia

- 0% prowizji

Oferta tylko u nas

Podstawowe Informacje:

Lokalizacja: Zawiercie Nowe Zawiercie
549 000 okazja!
Cena /m² 2 745
Rodzaj dom wolnostojący
Rynek wtórny
Powierzchnia 200 m²
Powierzchnia działki 600 m²
Ilość pokoi 7
Ilość kondygnacji 4
Rok budowy 1966
Dojazd droga asfaltowa
Pokrycie dachu blachodachówka
Dach kopertowy
Stan techniczny do remontu

Media

woda, prąd, gaz, kanalizacja, ogrzewanie

Dodatkowe Informacje

garaż / miejsca parkingowe, balkon / taras / loggia, oddzielna kuchnia, piwnica

Lokalizacja na mapie:


wgnZawiercie

Adrianna Kowalska

e-mail: a.kowalska@wgn.pl

tel.: +48 513 988 318

tel.kom.: +48 513 988 318

Adres biura:

Obrońców Poczty Gdańskiej 67

42-400, Zawiercie, Polska


Interesuje Mnie ta oferta

Zostało jeszcze: znaków

Oceń nasz serwis

średnia ocen: 4,3

Ten serwis korzysta z mechanizmów cookies (ciasteczka)

| Polityka Cookies